Demo 3D thang máy Cách thức thi công mà Khách hàng nào cũng nên biết
Ngày đăng:
24/10/2023
Lượt xem:
229
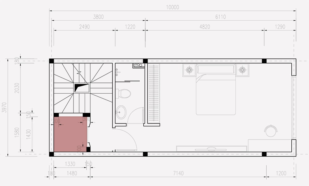
Để hình dung về thang máy trong tương lai và cách thức làm chúng ta thường lên bản vẽ DEMO bằng không gian 3 chiều. mô hình 3D hoặc ketchup ....với những hình ảnh chân thật và dễ hình dung đã cho Quý khách hàng cái nhìn bao quát khách quan và đưa ra giải pháp quyết định thông minh nâng cao thẩm mỹ và khả năng sử dụng thang máy cho Cuộc sống thăng hoa tốt đẹp hơn.









